Brunnenhof 8 is a beautiful, two bedroom apartment sleeping up to five guests in luxury and style
Introducing the Brunnenhof Residence in the world-renowned resort of Lech. The building has been completely renovated to the highest standards and is home to 14 beautiful luxury apartments. This unique mountain residence offers guests luxury alpine living at its best with state-of-the-art spa facilities and incredible, mountain views throughout.
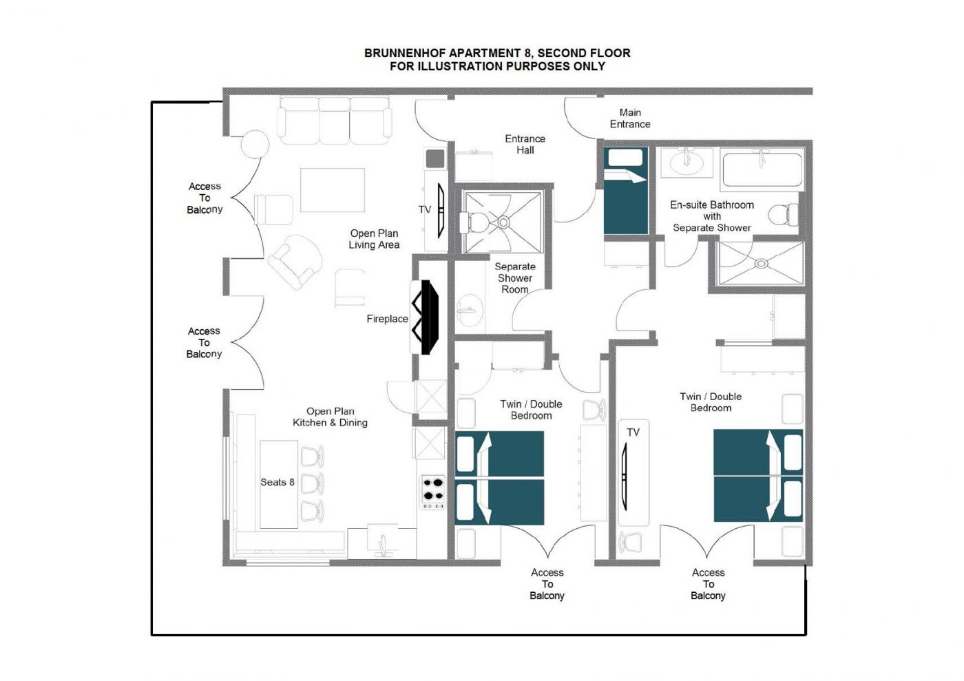
Brunnenhof 8 is a beautiful two-bedroom apartment which has been finished to the highest standard. The owner has carefully created a haven of tranquillity combined with luxury furnishings ensuring maximum relaxation from this stunning mountain retreat.
Sleeping four adults and one child in two large bedrooms, this second floor apartment is ideally located only a short stroll from the ski lift and centre of the village. Lech is a charismatic village which safeguards its traditions and has a timeless charm and sophistication, not to mention, sublime skiing.
This mountain retreat is the ideal base for families with the closest lift, the Schlosskopf chairlift, only a six-minute walk away.
Luxury linens, soft tones and meticulous attention to detail has ensured a stylish and comfortable atmosphere throughout. With floor to ceiling windows, natural light floods through the apartment. The apartment is spread over one elegant floor. The open plan living, dining and kitchen is the ideal arrangement for social evenings around the wide dinner table or relaxing with your favourite après ski drink.
The dining table comfortably sits ten guests and has easy access to the open plan kitchen which has everything you need to make yourself at home in the mountains. Enjoy dining in or if you prefer, have a drink on the terrace before experiencing one of Lech’s finest restaurants.
The living area has a large comfy sofa, and chairs for up to six people. Centred around the fireplace, and surrounded by breath-taking views, this makes the perfect spot to curl up and relax whilst it is snowing outside.
Decorated in tranquil, muted tones throughout, the bedrooms will ensure a good night’s sleep is had by all.
The beautiful master bedroom has a large walk in wardrobe, and French doors lead out to an oversized terrace, offering fantastic views and providing plenty of natural light. The master bedroom has a large en-suite bathroom with separate shower. There is a further, large double bedroom across the hall, and which has an adjacent shower room. In the hallway there is a children’s niche bed which provides a cosy spot should guests be requiring an additional bed.
Guests have access to the exclusive spa facilities making this one of Lech’s most sought-after residences. An indoor swimming pool, spa, hammam, sauna and treatment room provide the ultimate in relaxation after a hard day on the slopes.
Brunnenhof 8 is ideally located only a ten-minute walk from the centre of the village and a six-minute walk from the nearest lift, that will take you up and onto the slopes within minutes. The apartment comes with one parking space.
The luxury Lech apartment can be taken on a self-catered, B&B and accommodation only basis.
Twin/double bedroom with en-suite bathroom with separate shower
Twin/double bedroom with separate shower room
If you would like to see floorplans for this property then please email us and we'll send the floorplans to you.
Self Catered Services
Self Catered Staff
B&B Services
B&B Staff
Distance to closest lift:
Schlosskopf chairlift - 6-minute walk
Distance to closest piste:
n/a
Distance to closest center:
10-minute walk or a 3-minute drive
View on Google Maps
Airport 1
INNSBRUCK (INN) - 120KMS // 1HR 35MINS
Airport 2
ZURICH (ZRH) - 195KMS // 2HRS 15MINS
Private Airport
INNSBRUCK (INN) - 120KMS // 1HR 35MINS
Train Station
LANGEN AM ARLBERG - 15KMS // 20MINS
Heli Pad
FLEXENPASS - 8KMS // 10MINS
.webp)